
New Construction

Discover our new construction build services in Philadelphia! From single family homes to multi-family homes and more, we offer high-quality, customized construction solutions tailored to the unique architecture of the Philadelphia area. Our experienced team is dedicated to delivering on time and within budget while upholding the upmost standards of craftsmanship.
Follow along below as we go through the process of a new construction build for one of our previous clients, 1316-1318 S Juniper St!
The Dream Build Begins..
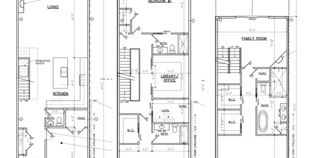
Welcome to our construction process! We begin with collaborative design phase to capture your vision. Our skilled architects create detailed renderings, while our team manages the permitting process for compliance. With our focus on quality and attention to detail, we ensure a smooth construction journey.
Your Ideas Start to Take Shape
The building phase of your construction project is an exciting journey as your plans become reality. This involves coordinating trades to create a solid foundation and stunning finishes, with attention to safety and regulations.
Your Vision Becomes Reality!
Step into your beautifully finished home, where every detail reflects your style. Our new construction service brings your dream to life and captures it with stunning photography. Enjoy spaces designed for comfort and lasting memories with loved ones.


























